Viareggio 0584 44148
Torre del Lago 0584 1660501
Agenzia Immobiliare Pasquali a Viareggio e Torre del Lago

Rif. 1W4502 - Terreno agricolo con manufatto

Descrizione

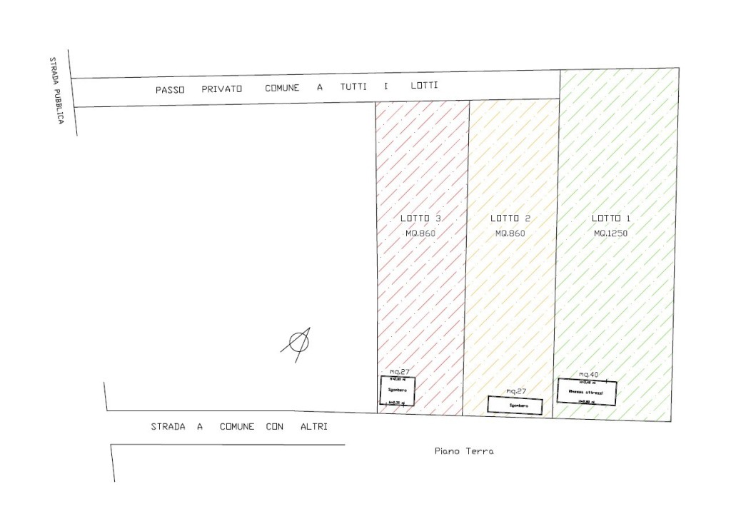
A Viareggio (LU) - Quart. Bicchio - tra Viareggio e Torre del Lago.

Proponiamo in Vendita 3 lotti di terreno agricolo, ciascuno con un manufatto uso ripostiglio, tutti acquistabili separatamente.

Il Lotto 1 misura circa 1.250 mq. e ha un manufatto di circa 40 mq.

Il Lotto 2 e il Lotto 3 misurano 860 mq. ciascuno con un manufatto di circa 27 mq. l'uno.


Tutti i manufatti sono in stato di abbandono e completamente da ristrutturare.

Tutti i terreni godono di un doppio accesso, sia tramite un passo privato a comune tra i 3 Lotti, sia da una strada interna alla principale a comune con altri.

Il frazionamento dei lotti è in corso.

Lotto 1: mq.1250 + mq.40  - prezzo €55.000

Lotto 2: mq.860 + mq.27 - prezzo €36.000

Lotto 3: mq.860 + mq.27 - prezzo €36.000



Prezzo

€ 36.000

Caratteristiche

Tipologia:

Terreno Agricolo

Contratto:

Vendita

Località:

Viareggio

Superficie (mq):

860

Terreno (mq):

860

Numero Vani:

1

Riscaldamento:

Assente

Garage:

PostoAuto

Giardino:

Privato

Condizioni:

Da Ristrutturare

Cl. Energetica:

Esente

Galleria fotografica

Contattaci ora, gratis e senza impegno

* Nome e Cognome:

* E-mail:

Telefono:

Oggetto:

Messaggio:
Controllo Antispam*: Qual è il numero tra 4 e 6?

Acconsento al trattamento dei dati personali

Altri Immobili che potrebbero interessarti

Terreno Agricolo a Viareggio in Ottima Zona

A viareggio (lu) - loc. Bicchio - in ottima posizione. Proponiamo in vendita esclusiva un terreno agricolo pianeggiante di circa 1. . . .

RIFERIMENTO: 1W4501
PREZZO: 48.000€
SUPERFICIE: 1600m²
 
Dettagli

Terreno Agricolo a Torre del Lago

Terreno pianeggiante di forma regolare recintato e con ampio cancello carrabile, della superficie complessiva di mq2500 possibilit. . .

RIFERIMENTO: 2L40500
PREZZO: 115.000€
SUPERFICIE: 2500m²
 
Dettagli

Terreno Agricolo pianeggiante di mq.1.900

A viareggio (lu) - loc. Torre del lago puccini - in ottima posizione. Terreno agricolo pianeggiante della superficie catastale di m. . .

RIFERIMENTO: 2M40500
PREZZO: 76.000€
 
 
Dettagli

Terreno Agricolo recintato a Torre del Lago

A torre del lago puccini, frazione di viareggio (lu), nella zona verso lago, terreno agricolo pianeggiante di forma regolare, di m. . .

RIFERIMENTO: 2L40501
PREZZO: 43.000€
SUPERFICIE: 1350m²
 
Dettagli